GO
楼盘资讯
华润·小径湾三期’户型谍报

作者:室介屋笈 类型:楼盘资讯

来源:www.BANQ.cn(半求·房地内参) 2018-06-04 16:18:00点击8813


■体验“纬度天堂”的滨海生活,华润•小径湾三期即将绽放

华润•小径湾由华润置地倾力打造,项目位于惠州大亚湾,离深圳仅1小时路程,是一座涵盖酒店、会所、商业街等多重丰富业态的滨海综合体。

项目总占地约177万㎡,规划建筑面积约270万㎡。整体预计分为七期开发,将打造滨海度假区、水岸核心活动区、雅致山林区以及林园景观社区等四大功能区。目前一期、二期已全部售罄,三期正在开发。

三期总占地面积约15.9万㎡,总建筑面积约43万㎡,产品含洋房临水院宅、高层映海水湾以及高层水晶塔楼等三种类型,共3896户。它不仅拥有山、海、河、林复合景观,并且从区位上看,项目所有配套皆环绕三期产品,包括滨河电影院、艾美酒店、华润大学、滨海商业街、万象海会所和贝赛思国际学校等。

■无限滨海风情景观,打造休闲度假环境

目前,华润•小径湾三期南区:含映海水湾(高层)45-48栋、临水院宅(洋房)49、50、52栋,共1296户,样板房已经开放。在售产品包括:

一、60㎡阔景一居

A1户型方正通透,阳光、清风时时驻足嬉戏。约4.5米大面宽景阳台,从此视界更开朗。开放式厨房设计,使房间宽敞明亮,并且在烹饪之余也能谈天说地。开阔客厅大气流畅,尽情挥洒每一天。

二、一房两厅一卫,五大户型多重选择

B1户型,建面约84㎡。开放式厨房连接餐厅,为假日的欢聚增添美味。动静分区,度假的欢笑和静谧两面可以同时支配。客厅、卧室与阳台相连,送来山海的自然气息。藤木吊椅,为约9.6米阳台的开阔视野,添加活力。

B2户型,建面约78㎡。室内空间宽敞、内外通透,光线明亮。功能区布局明晰,动静分区,包容假日的每一面。约8.3米阔绰阳台,足不出户,美景便可尽收眼底。视野宽广,无论是从客厅还是卧室,都可以随时品藏。

B3户型,建面约75㎡。邀三五好友闲话家常,客餐厅一体的设计让相聚更无拘。客厅、卧室与阳台浑然一体,每一眼的景致都是改变。一边月光party,一边孩子酣睡,动静分区互不打扰。开阔景观阳台,邂逅流动的万象。

B4户型,建面约90㎡。方正户型与灵动格局,让海边的生活更加明丽多彩。空间通透,室内与阳光连接,悄悄把阳光、海风带来。更广阔的人生格局,从约6.6米面宽+大景观阳台开始。每一种活动趣味都可以在L型景观阳台演绎。

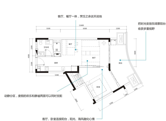
B7户型,建面约76㎡。客厅、餐厅一体,烹饪之余谈天说地。动静分区,度假的欢乐和静谧两面可以同时支配。把时光安放在阔景阳台,收获多重视野。客厅、卧室连接阳台,阳光、海风为生活注入惬意与闲适,为心灵带来轻松之感。

三、两房两厅一卫,享精致滨海生活

C1户型,建面约95㎡。约6.9开阔面宽景观阳台,启迪新的度假形式。或花卉或绿植,私家入户花园容纳更多生活创意。阳台连接客厅、卧室,室内亦可时时享受海风的吹拂。主次卧设计,让每一个家庭成员的起居需求,向享受靠岸。独立式厨房设计,隔离油烟,为海居生活增添明净。

四、舒心大尺度空间,三房两厅两卫

D5户型,建面约138㎡。踱步“L”型阳台,发现约270度景观视野的流动面。独立式厨房隔离油烟,赋予生活更多明净气质。大空间主卧套房设计,无限升腾度假的舒适度。多功能房镶嵌家中,是会友、远程会议的不二选择。

现房地内参www.BANQ.cn发布华润·小径湾三期’户型谍报,供各位参考。欢迎各方踊跃在第一时间提供各类第一手楼书、意向图资料到房地内参邮箱BANQ850@126.com,以谍报而造福网友。


免责声明:
1、本文部分图片来源于网络,素材图片版权归版权所有人所有。如有侵权,烦请联系删除。
2、文中陈述内容和观点均保持中立,不对其准确性、合理性或完整性提供任何保证,且不对因信息的不准确、不合理或遗漏导致的任何损失或损害承担责任。
3、本文所采用的图片、音频、视频等资料版权均归版权所有人所有,因非原创文章及图片等内容无法一一和版权者联系,如有侵犯,请第一时间联系我们,以迅速采取适当措施,避免给双方造成不必要的经济损失。
4、本网页如无意中侵犯了媒体或个人的知识产权,请来电告知,我们将立即删除。